2階建てプラン
38坪以上 40坪未満
| № |
プラン一覧 |
 |
 |
 |
 |
 |
 |
 |
 |
 |
 |
 |
 |
 |
 |
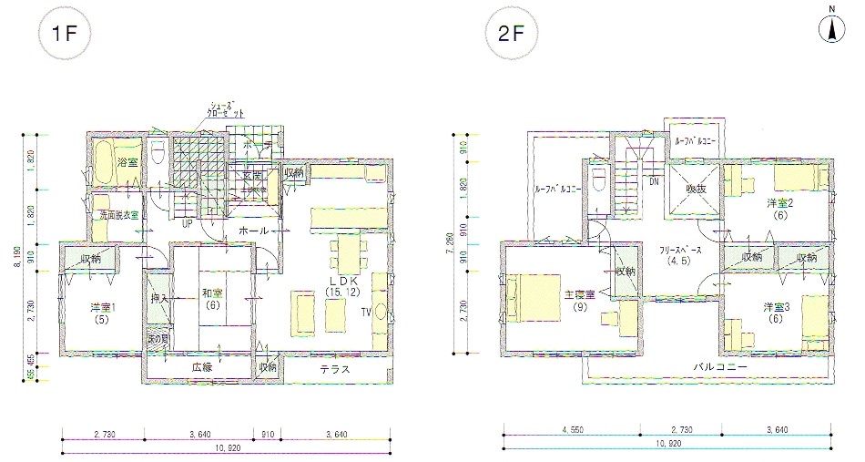
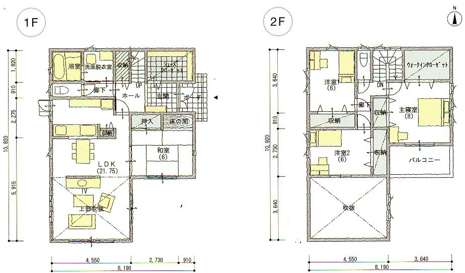
| 38EW1 |
 |
東西入り |
38.12坪 |
|
 |
 |
|
|
|
 |
|
|
 |
|
3 |
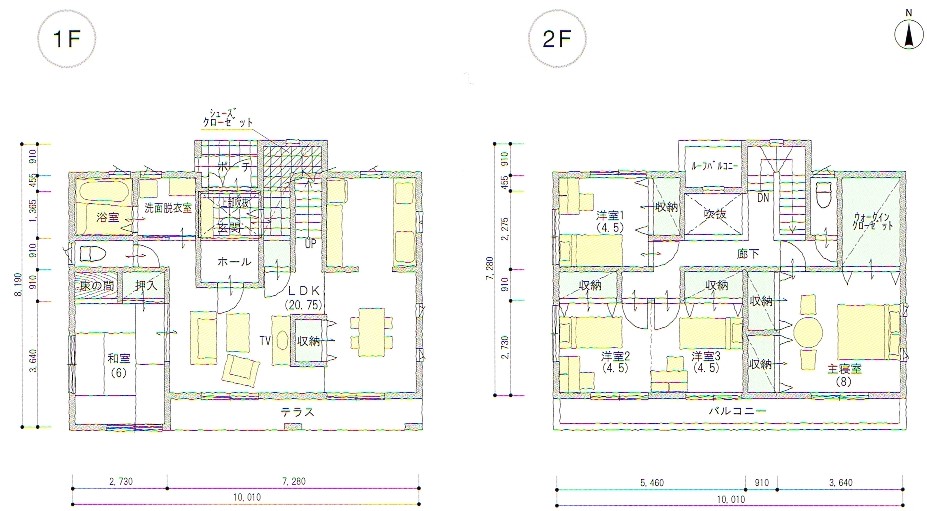
| 38EW2 |
 |
東西入り |
38.12坪 |
|
 |
 |
|
|
|
 |
|
|
 |
|
3 |
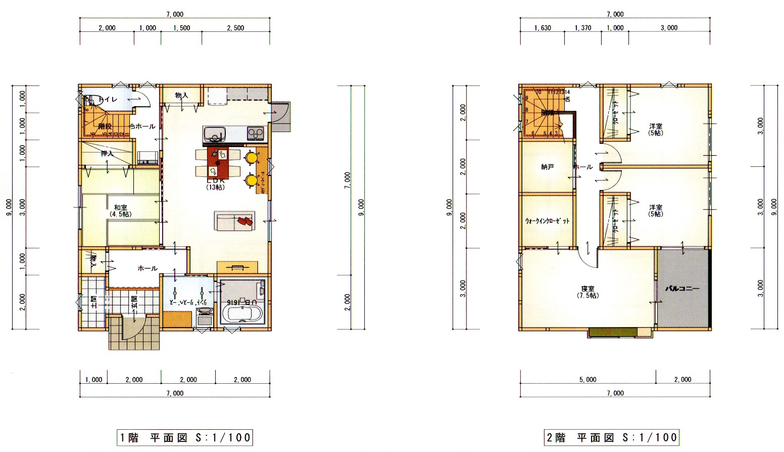
| 38EW3 |
 |
東西入り |
38.12坪 |
|
 |
 |
|
|
|
 |
|
|
 |
|
3 |
| 38EW4 |
 |
東西入り |
38.07坪 |
 |
 |
|
|
|
|
 |
 |
|
|
|
3 |
| 38EW5 |
 |
東西入り |
38.07坪 |
|
 |
|
|
|
|
 |
|
|
 |
|
3 |
| 38EW6 |
 |
東西入り |
38.57坪 |
|
 |
 |
|
|
|
 |
 |
|
 |
|
3 |
| 38N1 |
 |
北入り |
38.12坪 |
|
 |
 |
|
|
|
 |
|
|
 |
|
3 |
| 38N2 |
 |
北入り |
38.12坪 |
|
 |
 |
|
|
|
 |
|
|
 |
|
3 |
| 38N3 |
 |
北入り |
38.12坪 |
|
 |
 |
|
|
|
 |
|
|
 |
|
3 |
| 38S1 |
 |
南入り |
38.12坪 |
|
 |
 |
|
|
|
 |
|
|
 |
|
3 |
| 38S2 |
 |
南入り |
38.12坪 |
|
 |
 |
|
|
|
 |
|
|
 |
|
3 |
| 38S3 |
 |
南入り |
38.12坪 |
|
 |
 |
|
|
|
 |
|
|
 |
|
3 |
| 39EW1 |
 |
東西入り |
39.57坪 |
 |
 |
 |
|
 |
|
 |
|
 |
|
 |
2.5 |
| 39N1 |
 |
北入り |
39.07坪 |
|
 |
|
|
 |
|
 |
|
|
 |
|
3 |
| 39N2 |
 |
北入り |
39.07坪 |
 |
 |
 |
|
|
 |
|
 |
|
 |
 |
3.5 |
| 39N3 |
 |
北入り |
39.57坪 |
|
 |
 |
 |
|
|
 |
 |
|
 |
|
3 |