2階建てプラン
24坪以上 28坪未満
| № |
プラン一覧 |
 |
 |
 |
 |
 |
 |
 |
 |
 |
 |
 |
 |
 |
 |
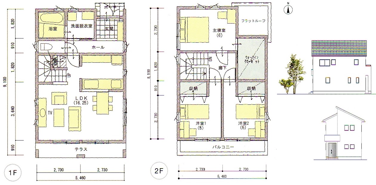
| 24N1 |
 |
北入り |
24.79坪 |
 |
|
|
|
|
|
 |
|
|
|
|
3 |
| 24S1 |
 |
南入り |
24.54坪 |
 |
|
 |
|
|
|
 |
|
|
|
 |
2.5 |
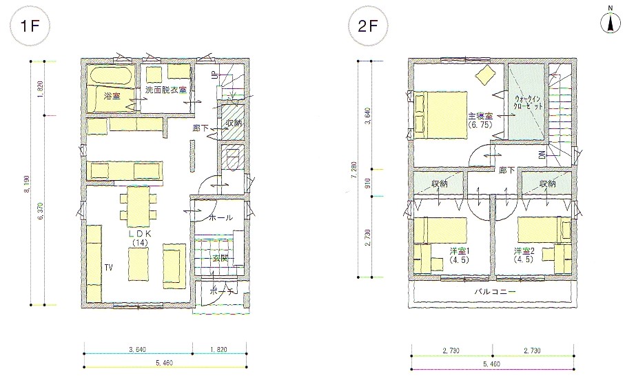
| 25EW1 |
 |
東西入り |
25.41坪 |
|
|
 |
|
|
|
 |
|
|
 |
|
3 |
| 25EW2 |
 |
東西入り |
25.70坪 |
|
|
|
|
|
|
 |
|
|
 |
|
3 |
| 25EW3 |
 |
東西入り |
24.80坪 |
|
|
 |
|
|
 |
|
|
|
 |
|
2 |
| 25N1 |
 |
北入り |
25.41坪 |
|
|
|
|
|
|
 |
|
|
 |
|
3 |
| 25N2 |
 |
北入り |
25.70坪 |
|
|
|
|
|
|
 |
|
|
 |
|
3 |
| 25N3 |
 |
北入り |
24.80坪 |
|
|
|
|
|
|
 |
|
|
 |
|
2 |
| 25N4 |
 |
北入り |
25.79坪 |
 |
|
 |
|
|
|
 |
|
|
|
|
3 |
| 25S1 |
 |
南入り |
25.41坪 |
|
|
 |
|
|
|
 |
|
|
 |
|
3 |
| 25S2 |
 |
南入り |
25.70坪 |
|
|
|
|
|
 |
|
|
|
 |
|
3 |
| 25S3 |
 |
南入り |
24.80坪 |
|
|
|
|
|
 |
|
|
|
 |
|
3 |
| 25S4 |
 |
南入り |
25.04坪 |
 |
|
 |
|
|
|
 |
|
|
|
|
3 |
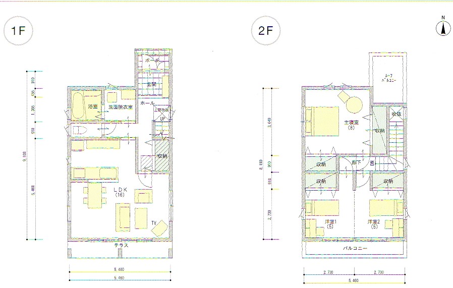
| 26N1 |
 |
北入り |
26.80坪 |
|
|
 |
|
|
|
 |
 |
|
|
 |
3 |
| 26S1 |
 |
南入り |
坪 |
 |
|
|
|
 |
 |
|
|
|
|
|
3 |
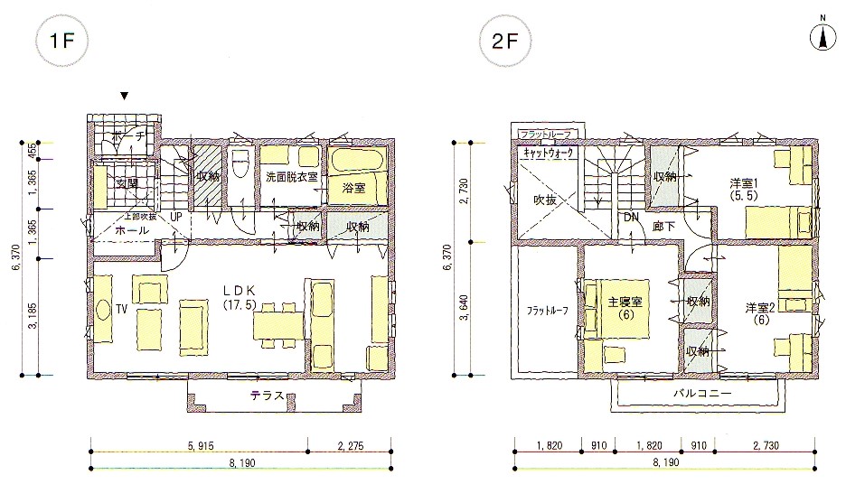
| 27EW1 |
 |
東西入り |
27.04坪 |
|
 |
 |
|
|
|
 |
|
|
|
|
2 |
| 27N1 |
 |
北入り |
27.55坪 |
|
|
|
|
|
|
 |
 |
|
|
|
3 |